Architektur
Bachelor und Master

Bachelor 6 Thesen
Prof. Stefan Krötsch
Prof. Dr.- Ing. Thomas Stark
Die Entwicklung des neuen Stadtteils Hafner ist das größte Konstanzer Stadtentwicklungsprojekt der nächsten Jahre. Es sollen neue Wohn- und Gewerbeflächen geschaffen werden, die Entlastung für den angespannten Wohnungsmarkt bringen und Wohn- und Lebensraum für alle Bevölkerungsgruppen bieten. Bei großen Stadterweiterungen, die einen erheblichen Eingriff in die Natur und Landschaft, aber auch in die Siedlungsstruktur bedeuten, ist eine möglichst nachhaltige und resiliente Entwicklung wichtig. Eines der Ziele, welches für das Projekt Hafner schon sehr früh definiert wurde, ist daher die möglichst klimaneutrale Entwicklung des Stadtteils.
Die Wohnbedürfnisse in Deutschland sind heute so individualisiert wie die Gesellschaft, die sie abbilden. Beispielsweise werden Wohnumgebungen benötigt, die eine Vereinbarkeit von Beruf und Privatleben von Alleinerziehenden und berufstätigen Eltern sinnvoll unterstützen. Neben Größe, Verfügbarkeit und Kosten der Wohnung können Kinderbetreuungsmöglichkeiten, für Kinder nutzbare Freibereiche, Mehrzweckräume für Freizeitaktivitäten und räumliche Angebote zum Arbeiten in der eigenen Wohnumgebung wichtige Faktoren sein.
Senioren dagegen wünschen sich vermehrt Konzepte, die die Vorteile der eigenen Wohnung mit den Möglichkeiten betreuter Wohnanlagen verbinden. In den letzten Jahren hat sich dazu eine große Vielfalt entwickelt, die von gemeinschaftlichen Wohnformen wie Senioren-Wohngemeinschaften, Mehrgenerationenwohnen bis hin zu Pflege-Wohngemeinschaften, Demenz-Wohngruppen oder 24- Stunden-Pflege reichen. Studierende, Auszubildende oder auswärtige Berufstätige benötigen ferner kostengünstige und flexibel verfügbare Wohnungen für einen begrenzten Zeitraum.
Gleichzeitig nimmt der Wohnflächenbedarf pro Person kontinuierlich zu. Seit den 1950er Jahren hat er sich um das Zweieinhalbfache gesteigert. Das ist nicht nur aus ökologischer Sicht ungünstig, denn die energetische Effizienzsteigerung der letzten Jahrzehnte wird dadurch mehr als kompensiert. Darüber hinaus sorgt der zunehmende Flächenbedarf pro Person für eine stetige Verknappung von Wohnraum und ist damit einer der Gründe der aktuellen Steigerungen von Mieten und Wohnungspreisen.
Ein rationaler und disziplinierter Umgang mit der zur Verfügung stehenden Fläche ist für die Planung von großer Bedeutung. Ziel der kommunalen Entwicklung ist ferner eine möglichst große soziale Durchmischung.
Auf Basis der städtebaulichen Planung ist ein Ausschnitt des Hafner-Areals in der Größe eines Hektars (100 x 100 m) zu entwerfen und detailliert auszuarbeiten. Die Auswahl dieses Projektperimeters ist – nach Rücksprache mit den Betreuern – den Studierenden überlassen. Bedingung ist jedoch, dass mindestens die Hälfte des Perimeters Wohnnutzung enthält. Die Studierenden machen bis zum Rückfragenkolloquium einen Vorschlag zur Auswahl des Planungsgebiets.
Während des Entwurfs kann von den Vorgaben der städtebaulichen Planung abgewichen werden, so lange die Grundzüge der Planung dabei nicht in Frage gestellt werden.
Sämtliche Gebäude im Bereich des Projetperimeters sind bis zum Maßstab 1:500 in Grundrissen, Schnitten und Ansichten auszuarbeiten, für die Freiflächen sind Konzepte zu erarbeiten.
Mindestens ein Gebäude ist detailliert bis zum Maßstab 1:20 zu entwickeln.
In der Ausarbeitung ist zu dokumentieren, wie das dem Hafner-Areal zu Grunde liegenden Konzept eines klimaneutralen Stadtquartiers bis in die Ebene des Gebäudeentwurfs übertragen wird.
Kevin Späth - HAFNER KONSTANZ
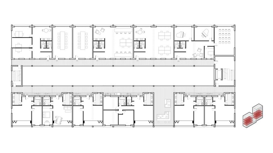
Ziel des Entwurfes ist die Schaffung neuartiger, innovativer und bedarfsorientierter, nicht nur standardisierter Wohnmodelle, als zeitgemäße Antwort auf gesellschaftliche Entwicklungen. Das flexible Raumkonzept lässt in Raumfolgen alle Wohnformen wie Familienwohnen, Seniorenwohnen, Clusterwohnen und Singlewohnen zu. Diese kleinräumige soziale Mischung verschiedener Einkommensgruppen und Lebensstile trägt zur Entstehung von generationenübergreifenden Nachbarschaften bei. Der Entwurf folgt dabei einer streng linearen Gebäudeorganisation, entsprechend dem konstruktiven Holzbau sind die Grundrisse geprägt von einer einfachen, pragmatischen Raumstruktur aus einer Abfolge nutzungsneutraler Räume. Gemeinschaftliche Angebote wie eine Dachterrasse und Waschräume ergänzen die Wohnungen und bieten Orte des sozialen Miteinander. Die Klarheit und Konsequenz des Grundrisses entspricht auch der Tragwerksstruktur. Die Decken liegen auf den Längsfassaden und auf zwei parallel dazu verlaufenden Mittelwänden auf und überspannen eine mittige Sanitärschicht sowie zwei frei einteilbare Raumschichten.
Larissa Götze - 100 x 100 METER
Der Masterplan des Hafner- Areal sieht eine Bündelung der PKW- Stellplätze in insgesamt 8 Quartiersgaragen und Mobility- Hubs vor. Damit wird der Straßenraum weitestgehend von ruhendem Verkehr freigehalten. Mit dem für den neuen Stadtteil ausgearbeiteten Mobilitätskonzept wird außerdem auf einer Verringerung des Individualverkehrs hingearbeitet.
Mit Blick in die Zukunft eröffnet sich hier eine neue Perspektive, in welcher man im Idealfall von einem zukünftig abnehmenden Stellplatzbedarf ausgehen kann.
Da heutzutage jedoch noch eine Notwendigkeit für Parkflächen besteht, müssen diese auch in dem Städtebau berücksichtigt werden. Dabei stellt sich die Frage, wie der zusätzliche Flächenverbrauch in Einklang mit Zielen der Klimaneutralität gebracht werden kann.
Einen Ansatz dazu stellt das folgende Konzept dar, in welchem zusätzlich zu der Parknutzung von Anfang an eine spätere Umnutzung des Gebäudes mitgeplant wird. Dieser Ansatz ermöglicht eine Abstimmung von Konstruktion und Achsraster- Maßen, sodass bei einem späteren Umbau so wenig neue Ressourcen wie möglich verbraucht werden und ein Großteil der Konstruktion weitergenutzt wird.
Paul Knauer - Hafnerforum
Durch Nutzung der abfallenden Topografie kann sich ein großer Hallenraum auf zwei Ebenen entwickeln, der zwischen den beiden Wohnriegeln eingespannt ist. Das Forum verbindet so die beiden Wohntypologien in einem gemeinsamen Zentrum. Vom Platz kommend betritt man das Forum über eine Galeriebene. Von hier überblickt man unmittelbar den hohen, offenen Hauptraum des Marktes. Eine großzügige Treppe mit Sitzstufen macht das topografische Gefälle im Forum spürbar und verknüpft das Erdgeschoss mit dem unteren Hallenraum. Die Offenheit des Raumes wird durch großzügige Fenster am anderen Hallenende betont. Gemeinsam mit den Oberlichtern, die sich über der Trägerschicht der Hallenmitte befinden, sorgen sie für eine angenehme, helle Atmosphäre. In Abständen von drei Metern überspannen Vollprofilträger aus Baubuche den sechs Meter hohen Raum.
Der großzügige Raum kann bei Bedarf flexibel umgenutzt werden und wird problemlos zum Schauplatz für größere Events. Auf der Galerieebene bespielen öffentliche und halböffentliche gastronomische Nutzungen das Forum. Von hier öffnet sich der Blick über den regen Marktbetrieb der Halle. Zusätzlich verstärkt der Wandelgang auf Galeriebene den Bezug der beiden Geschosse zueinander. Er umschließt die gesamte Halle und verknüpft sämtliche Räume des Erdgeschosses. Rhythmisiert durch die Stützenreihe des Hallentragwerks und die über dem Wandelgang positionierten Oberlichter, wird die Erschließungsfläche mit räumlicher Qualität aufgeladen und bietet einen Treffpunkt mit Ausblick auf das Geschehen im Forum.


















