Architektur
Bachelor und Master

Bachelor 6 Thesen
Prof. Dominik Fiederling
Prof. Myriam Gautschi
CLAUSURA
Die Klausur (lat. claudere: schliessen) bezeichnet einen abgegrenzten Ort des Rückzugs, der im Kloster den Ordensangehörigen vorbehalten ist. Die Aufgabe der Bachelor Thesis 2020 reagierte auf die Situation, in welcher wir alle aufgrund der Pandemie gezwungen waren, uns aus dem gemeinschaftlichen Leben zurückzuziehen und in unseren privaten Räumen zu arbeiten, zu studieren, zu lehren, etc. Wir erlebten alle am eigenen Leib, was es bedeutet, auf Kontakte zu verzichten. Das Thema der Klausur konnte in drei thematischen Richtungen umgesetzt werden:
1. Ein Ort des geistlichen Rückzugs, ein Kloster oder ein klosterähnliches Einkehrhaus spirituell-religiöser Ausrichtung.
2. Ein Rückzugsort der physischen Rekonvaleszenz im Sinne eines Sanatoriums o.ä.
3. Ein Ort für einen zeitlich begrenzten konzentrierten Arbeitsaufenthalt, wie z.B. ein Studienkolleg oder ein Künstler- oder Musikerhaus.
Die Ausformulierung eines Nutzungsprogramms mit je einem Individualraum für ca. 20-30 Personen sowie den dazu notwendigen Gemeinschaftsräumen war Bestandteil der Aufgabe. Der Ort war wählbar aus drei Optionen: ein Text, ein Bild oder ein konkretes Grundstück in Konstanz. Eine Annäherung an den Ort konnte somit physisch, assoziativ oder durch Imagination beschritten werden.
Annick-Sophie Bächle - georgia o´keeffe foundation
fernab der beschäftigten welt, in der wüste von new mexico, befindet sich der standort der georgia o´keeffe foundation. vierundzwanzig künstlerinnen haben hier die möglichkeit, allein für sich selbst sein zu dürfen, gedanken zu ordnen und sich konzentriert einer bestimmten aufgabe/ thema zu widmen. der entwurf der georgia o´keeffe foundation zeichnet sich durch seinen bewussten umgang mit dem ort und seinem archaischen charakter aus. alle elemente, die dem new mexikanischen universum zugehören - licht und schatten, unterschiedliche farben (landschaft/ himmel), materialien, einheimische einflüsse - werden in dem entwurf berücksichtigt und finden ihren ganz eigenen platz.
Milana Alaro - Isbachanchiin Chusam
Kunst, Berge, Kontemplation.
Isbachanchiin Chusam, was so viel bedeutet wie "des Künstlers Zuhause" ist ein Künstlerkollektiv, im Kaukasusgebirge in Tschetschenien. Das Kollektiv soll Rückzugsort für Künstler sein, die sich erholen von einer schnellen, digitalisierten, hektischen Welt und neue Energie schöpfen von den Bergen, der Historie und traditionellen Architektur des Landes. Diese Arbeit stellt einen Versuch dar, sich der traditionellen tschetschenischen Wehrarchitektur anzunähern, um eine Brücke zwischen Vergangenheit, Gegenwart und Zukunft zu schaffen und diese wertzuschätzen.
Paul Wrobel - Schweigekloster
Das Konzept Schweigekloster im Paradies findet im Spannungsfeld zwischen alltäglichem, städtischem Leben und der Stille und Zurückgezogenheit des klösterlichen Lebens- und Arbeitsritus statt.
Der Kreuzgang ist verbindendes Element, welcher die sich im täglichen Ritus verorteten Stationen miteinander verbindet und einen ewigen Kreislauf bildet. Die städtische, lebhafte Umgebung bildet den Ort, der durch die Öffnung des Klosters für Gäste zugleich ein Ort der Klausur, der Stille und des Insichkehrens sein soll - ein Treffpunkt im Unendlichen. Dieser Weg ist gesäumt von Möglichkeiten des An- und Innehaltens, des gemeinsamen oder einzelnen Verweilens in Ruhe und - oder in stiller Gesellschaft.
Katharina Kaißer
via dolorosa - Ein Kloster in New York
Ziel des Entwurfs ist es, einen Ort des Rückzugs zu erschaffen. Einen Ort an dem Menschen ihren Alltag vorübergehend vergessen können, um ihre Probleme hinter sich zu lassen.
Inmitten der Upper East Side, zwischen der Lexingten Avenue und der 3th Avenue, entsteht ein Gebäude, welches sich durch seine Kubatur ideal in den städtebaulichen Kontext einfügt. Sein massives äußeres Erscheinungsbild verleiht dem Komplex die entsprechende Kraft, um sich auch in solch einer dichten Bebauung durchzusetzen und sich von den Nachbargebäuden abzuheben.
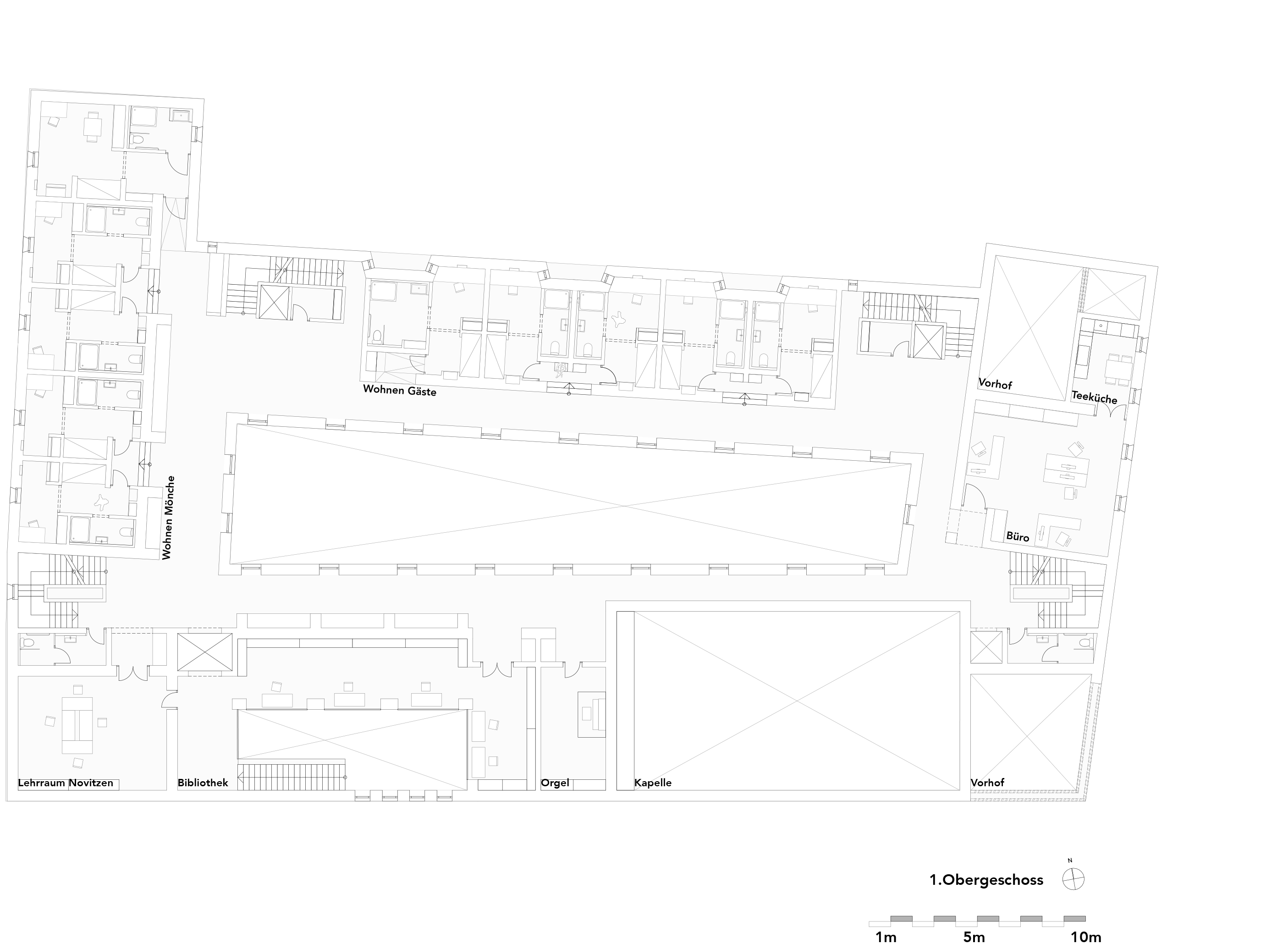
Sebastian Dunst
Das Kloster ist in drei Bereiche gegliedert. Der erste Teil (oben links) ist der Bereich der Pilger und Gäste. Hier findet Begegnung und Austausch statt. Er grenzt nach Süden hin an das Refektorium, im Osten an die Kirche. Der geistige Teil (rechts) nimmt die größte Fläche ein. In ihm wohnen die Brüder und widmen sich ihrem geistigen Studium. Die Kirche, Kapelle und Friedhof sitzen im ausgehöhlten Fels. Der verbleibende Teil umfasst die leiblichen, weltlichen, nicht geistlichen Funktionen des Klosters. In diesem Bereich wird gespeist, gearbeitet und erholt. In dem Kloster lebt eine Bruderschaft des Dominikaner-Ordens. Ihr Tagesablauf ist geprägt von Gebet, Gemeinschaftsleben, Studium & Predigt. Im Pilgerhaus können 20 Pilger oder Gäste beherbergt werden. Diese haben die Möglichkeit, mit den Brüdern gemeinsam im Refektorium zu speisen.


































